г Пермь, ул Маршала Рыбалко, д 99б 7 (342) 273-77-87
г Екатеринбург, ул 8 Марта, д 149, офис 433 7 (343) 206-39-79

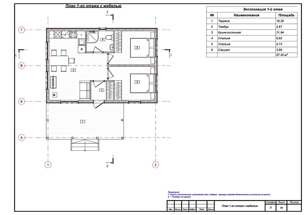
Продажа дом 67 м² на участке 7 сот. J7

Екатеринбург, Свердловская область, муниципальное образование Екатеринбург, Академический район
Комнаты 3
Площадь 67 м²
Этажи 1
Сдача 2025
QR
Ссылка на объект
ИЩЕТЕ ГОТОВЫЙ ДОМ? Забудьте о годах стройки! Не тратьте жизнь на поиски "того самого" готового дома

Что если ваш дом, спроектированный ПОД ВАШ участок и желания, будет возведен – буквально за 14 дней?

🔥 Преимущества нашей технологии:
• Заводские производство — точность и качество без компромиссов!
• Суперпрочный, энергоэффективный дом — экономия на отоплении с первой зимы
• Персональный проект — выберите из готовых или создайте вместе с архитектором без переплат

💰 Финансы без стресса:
• Поэтапная оплата — платите только за выполненные работы
• Рассрочка и помощь с льготной ипотекой
• Аккредитованный застройщик, поддерживаем государственные программы
• Стройтесь с нами или закажите домокомплект для самостоятельной сборки!

Внимание: Цена указана без учета стоимости участка!

📍 Проекты в Екатеринбурге и области
Напишите «Хочу дом» — и мы отправим каталог проектов!

📞 Ваш дом уже ждет — звоните или пишите прямо сейчас!
Характеристики
  • Тип недвижимости Дома, дачи
  • Населенный пункт Екатеринбург
  • Адрес Свердловская область, муниципальное образование Екатеринбург, Академический район
  • Тип объекта дом
  • Тип дома деревянный
  • Общая площадь 67 м²
  • Площадь участка 7 сот.
  • Количество этажей 1
  • Подвальное помещение нет
  • Год постройки 2025
  • Материал стен Сэндвич-панели
  • Тип участка садовый
  • Санузел в доме
  • Душ В доме
  • Удобства в доме
  • Статус земли СНТ
  • Количество комнат 3
Задать вопрос

Мы используем файлы cookie, чтобы обеспечить вам наилучший доступ к нашему веб-сайту

Скопировано