г Пермь, ул Маршала Рыбалко, д 99б 7 (342) 273-77-87
г Екатеринбург, ул 8 Марта, д 149, офис 433 7 (343) 206-39-79

Лучшее предло J32

Екатеринбург, Кировский, улица Гагарина, д.9 Площадь 1905 года Север-Юг 1626 мин.
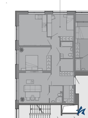
Комнаты 3
Площадь 82.7 м²
Жилая 42 м²
Кухня 15 м²
Этаж 21 из 31
Сдача 2024 г.
QR
Ссылка на объект
Уникальное предложение на рынке недвижимости Екатеринбурга — просторная трёхкомнатная квартира в современном жилом комплексе бизнес класса, по адресу: улица Гагарина, 9. Три изолированные комнаты и кухня-гостиная.
Эта квартира расположена на 21 этаже 31-этажного кирпично-монолитного дома, построенного в 2024 году. Из окон открывается вид на весь Екатеринбург, а комнаты изолированы, что обеспечивает комфорт и уединение.
Общая площадь квартиры составляет 82,7 кв. м. Дизайнерский ремонт позволяет сразу заселиться и наслаждаться уютом без дополнительных вложений, Вам доделать остается совсем не много. И прекрасная квартира в вашем распоряжении. Наземная парковка и огороженная территория обеспечивают безопасность и удобство.

Не упустите шанс стать обладателем этой прекрасной квартиры! Позвоните нам прямо сейчас, чтобы узнать больше и записаться на просмотр.

Мы гарантируем безопасную сделку и юридическую поддержку нашим Клиентам. Поможем одобрить ипотеку с сниженной ставкой.
Характеристики
  • Тип недвижимости Квартиры
  • Населенный пункт Екатеринбург
  • Район Кировский
  • Адрес улица Гагарина, д.9
  • Станция метро Площадь 1905 года ( 1626 мин.)
  • Количество комнат 3
  • Год постройки дома 2024 г.
  • Общая площадь 82.7 м²
  • Жилая площадь 42 м²
  • Площадь кухни 15 м²
  • Этаж 21
  • Этажей в доме 31
  • Тип санузла 2
  • Тип балкона лоджия
  • Ремонт дизайнерский
  • Состояние объекта отличное
  • Наличие телефона нет
  • Наличие интернета да
  • Наличие мебели да
  • Мусоропровод нет
  • Вид из окон на улицу
  • Высота потолков в метрах 2.75 м.
  • Тип дома монолит
Задать вопрос

Мы используем файлы cookie, чтобы обеспечить вам наилучший доступ к нашему веб-сайту

Скопировано