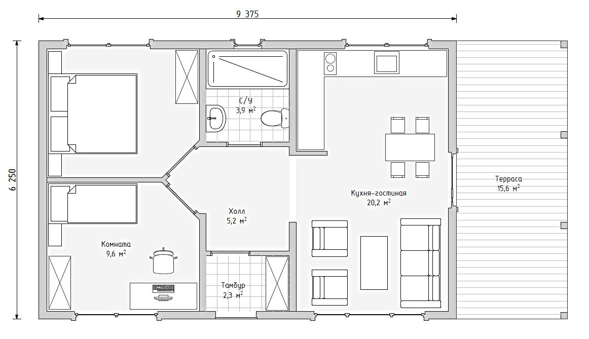
Элегантный одноэтажный дом — истинное олицетворение изящества и семейного уюта, вмещающий 58 квадратных метров незабываемого комфорта и покоя.
Этот быстровозводимый шедевр не просто жилище, а сотканный из традиций и заботливого дизайна проект, где каждая деталь дышит надежностью и теплотой домашнего очага.
✨ Вот что ожидает вашу семью в таком доме:
- Фасад, оформленный в классических тонах — фиброцементный сайдинг в виде древисины или облицовочного кирпича, на ваш выбор: вечный, наполненный достоинством, он всегда излучает солидность. Достаточно аккуратного ухода, чтобы ваш дом сиял первоклассной красотой, сохраняя элегантную сущность под любым небом.
- Внутри — две просторные спальни, раскрывающиеся пространством любви и покоя, словно мягкие объятия после долгого дня. Широкая кухня-гостиная с гармоничными пропорциями, где воздух очаровывает классической утонченностью, наполняя каждый уголок светом и атмосферой радостного семейного единения.
- Крытая терраса это больше чем просто площадка перед домом, это островок комфорта, вдохновения и уюта, созданный специально для вас . Представьте вечер с друзьями под звёздами или утренний кофе в тишине, когда вокруг только свежий воздух и спокойствие.
🚀 Заводское производство гарантирует скорость возведения: дом готов всего за 1 месяц, а монтаж займет не более 14 дней — чтобы вы могли почувствовать тепло домашнего очага в самые короткие сроки, обнимая вас заново!
🏡 Ищете истинно энергоэффективный и комфортный дом? Классический одноэтажный вариант — ваш идеальный выбор, воплощающий мечты о стильном семейном убежище, где каждая деталь дышит заботой и надежностью.
Гарантия на строительство, плюс термоаудит для максимального комфорта.
Этот дом — не просто жилье, это шаг к стилю жизни, полному вдохновения и семейного тепла в устоявшихся традициях.
🎁 Акция сезона: Домокомплекты по цене производителя для самостоятельной сборки — воплотите мечту своими руками! Или наслаждайтесь полным сервисом с 5% скидкой на заказ строительства под ключ.