г Пермь, ул Маршала Рыбалко, д 99б 7 (342) 273-77-87
г Екатеринбург, ул 8 Марта, д 149, офис 433 7 (343) 206-39-79

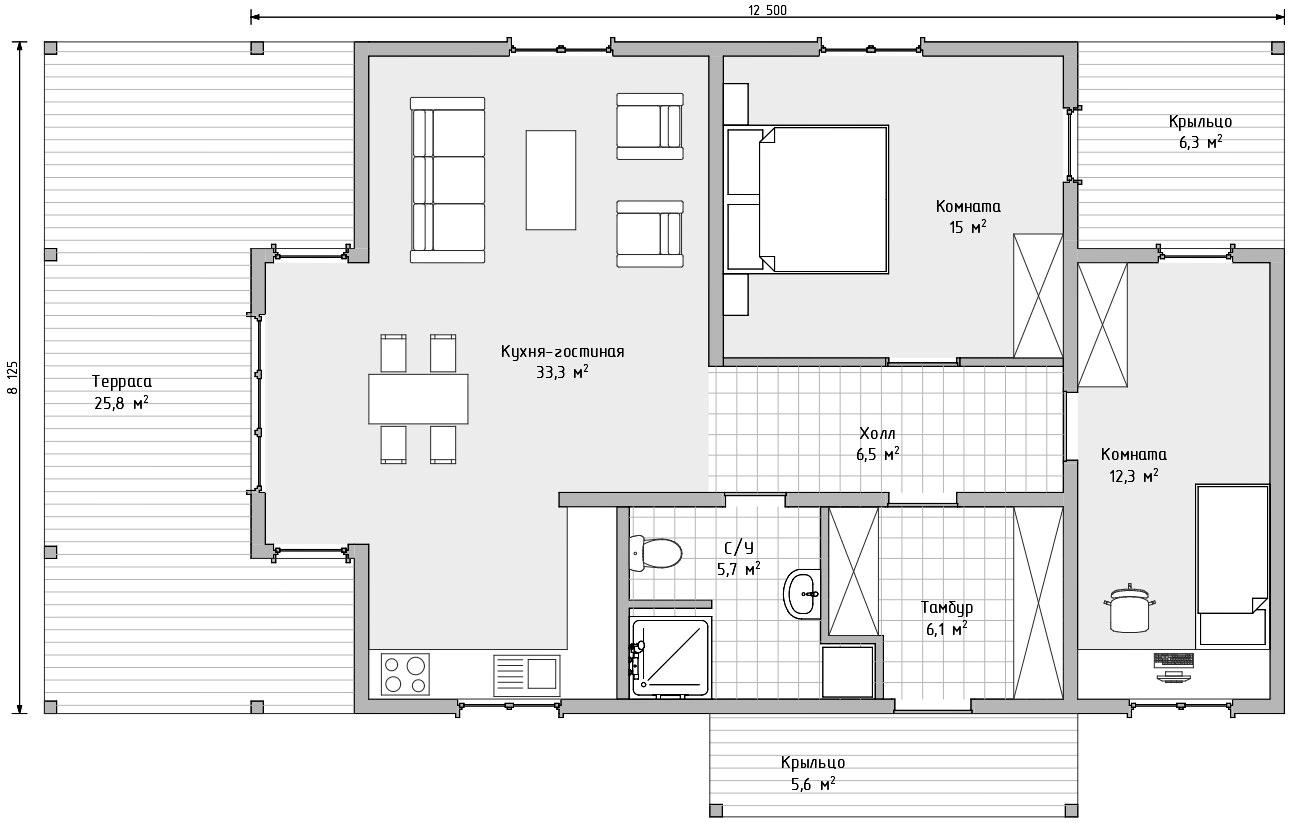
Лена - 100к - быстровозводимый каркасный дом

Лена - 100к - быстровозводимый каркасный дом
  • ТипКаркасный
  • Полезная площадь дома90 м²
  • Общая площадь128 м²
  • Количество спален2
  • Количество санузлов1
  • Изменение планировкиДоступно по запросу

Теплый контур (ЭКО-панели) 5 450 000

Агент

Заинтересовал данный проект?

Позвонить мне
Конфигурации
Коммуникации
Название Стоимость
Геодезическое исследование участка 0
Фундамент Ж/Б забивные сваи 150 х 150 х 3000 мм 0
Монтаж заводского PreFab домокомплекта 0
Монтаж фасада: фиброцементный сайдинг с имитацией дерева или камня (либо термопанели), на выбор заказчика 0
Приточная и вытяжная вентиляция 0
Электрика (вводной кабель, электрический щит, разводка по точкам в гофре), УЗО 0
Водоотведение: Установка гильз под выход канализации 0
Водоснабжение: Разводка труб по дому 0
Окна Veka SoftLine 70, профиль 70 мм, цвет белый без ламинации, стеклопакет двойной 0
Дверь входная с двойным терморазрывом 0
Кровля: Металлочерепица GrandLine с полимерным покрытием Satin 0
Похожие проекты
Урал - 100к - быстровозводимый каркасный дом
Каркасный
6 500 000
  • Площадь дома 96 м²
  • Общая площадь 110 м²
  • Количество спален 4
Урал - 90к - быстровозводимый каркасный дом
Каркасный
5 200 000
  • Площадь дома 86
  • Общая площадь 99,42 м²
  • Количество спален 3
Витим- 70к - быстровозводимый каркасный дом
Каркасный
4 470 000
  • Полезная площадь дома 71 м²
  • Общая площадь 105 м²
  • Количество спален 2
Каркасные дома
4
дом 71.85 м² на участке 11 сот.
Пермь, улица Центральная

3 000 000
  • Тип дома:деревянный
  • Количество этажей:1
  • Материал стен:Сэндвич-панели

Мы используем файлы cookie, чтобы обеспечить вам наилучший доступ к нашему веб-сайту

Скопировано