Элегантный одноэтажный дом с односкатной кровлей, вмещающий 54 квадратных метра волшебного комфорта и безмятежного покоя.
Этот быстровозводимый шедевр — не просто пристанище, а произведение искусства, сотканное из благородных традиций и заботливого мастерства, где каждая черта дышит непоколебимой надежностью и нежной теплотой родного дома, а наклонная крыша мягко стелется над ним, словно защитное крыло, гармонично сливаясь с горизонтом.
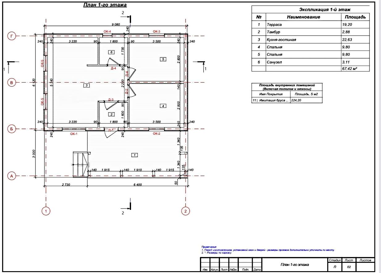
✨ Вот что ожидает вашу семью в таком удивительном доме:
- Фасад, утонченно оформленный в классических оттенках монументальности — фиброцементный сайдинг, имитирующий благородную древесину: он неизменно излучает благородную солидность, венчаясь элегантной односкатной кровлей, что придает ему неповторимый силуэт, полный грации и баланса под любым небом.
Достаточно бережного ухода, чтобы ваш дом сиял первозданной красотой, сохраняя свою элегантную сущность и уютное очарование.
- Внутри — две спальни, раскрывающиеся пространством глубокой любви и умиротворенного отдыха, словно ласковые объятия после долгого странствия.
- Кухня-гостиная с превосходными пропорциями, где атмосфера пленяет классической грацией, наполняя каждый уголок мягким светом и радостной волной семейного единения, а простой объем дома дарит ощущение простора и свободы.
- Терраса — ваш личный рай под небом (рассчитывается индивидуально): укрывает от осенних дождей, приглашая к уютным моментам семейного блаженства, будь то чашка ароматного кофе или приятные вечерние беседы.
🚀 Заводское производство домокомплекта гарантирует стремительность возведения: дом готов уже за 1 месяц, а монтаж займет не более 14 дней — чтобы вы могли ощутить тепло родного очага незамедлительно, обнимая вас новой нежностью!
🏡 Стремитесь к истинно энергоэффективному и гармоничному дому? Классический одноэтажная жемчужина — ваш идеальный выбор, воплощающий мечты о стильном семейном рае.
Гарантия на строительство, дополненная термоаудитом для высшего комфорта и мудрого сохранения энергии.
🎁 Акция сезона: Домокомплект по цене производителя для самостоятельной сборки — сотворите мечту своими руками! Или наслаждайтесь полным сервисом с 5% скидкой на заказ строительства под ключ.