г Пермь, ул Маршала Рыбалко, д 99б 7 (342) 273-77-87
г Екатеринбург, ул 8 Марта, д 149, офис 433 7 (343) 206-39-79

Кама - 126к - быстровозводимый каркасный дом

Кама - 126к - быстровозводимый каркасный дом
  • ТипКаркасный
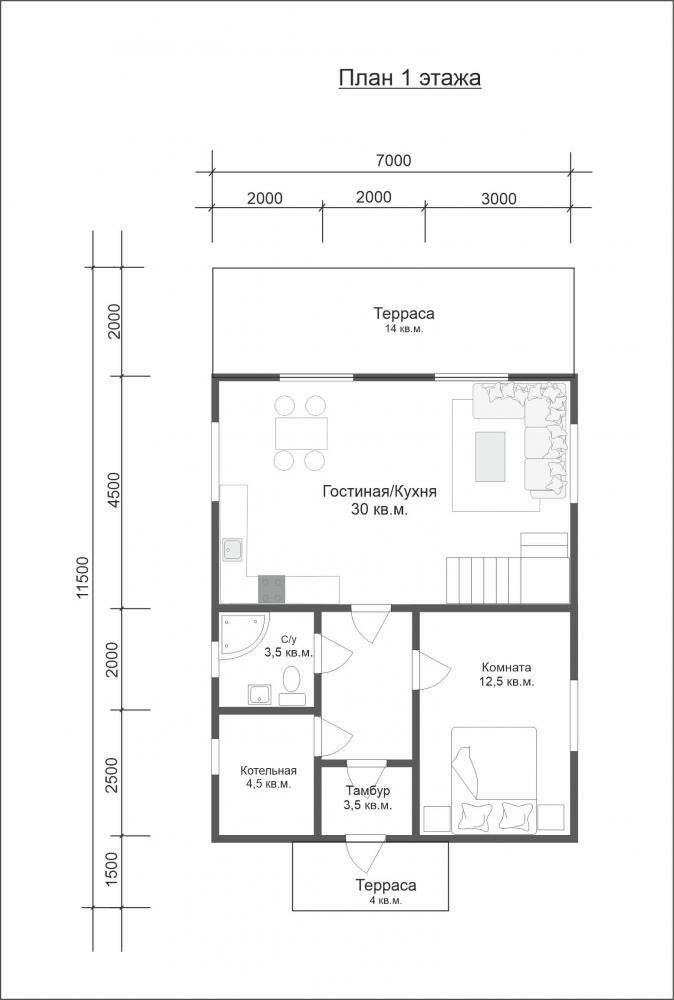
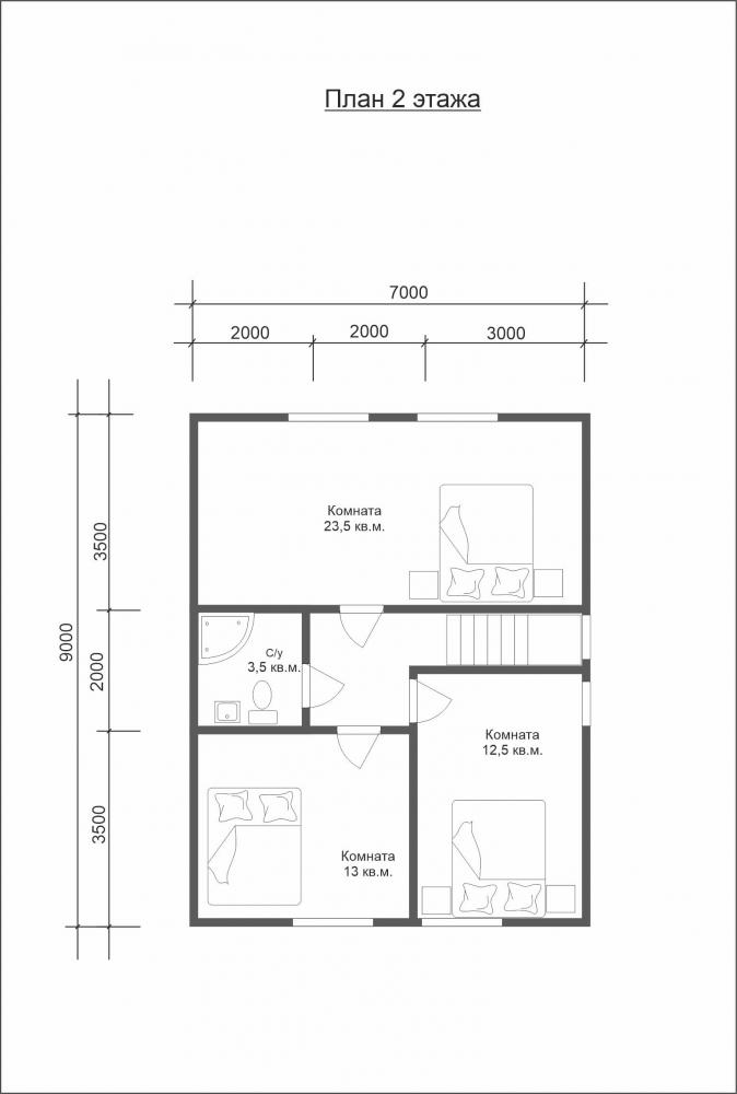
  • Площадь дома126 м²
  • Общая площадь с террасами144 м²
  • Количество спален4
  • Количество санузлов2
  • Изменение планировкиДоступно по запросу

Теплый контур (ЭКО-панели) 5 800 000
Теплый контур (3Д-каркас - финская технология) 7 400 000

Агент

Заинтересовал данный проект?

Позвонить мне
Конфигурации
Коммуникации
Название Стоимость
Геодезическое исследование участка 0
Фундамент Ж/Б забивные сваи 150 х 150 х 3000 мм 0
Монтаж заводского PreFab домокомплекта 0
Монтаж фасада: фиброцементный сайдинг с имитацией дерева (ЭКО-панели) / Финская тонкопиленная доска с заводским окрашиванием (3Д-каркас) 0
Приточная и вытяжная вентиляция 0
Электрика (вводной кабель, электрический щит, разводка по точкам в гофре), УЗО 0
Водоотведение: Установка гильз под выход канализации 0
Водоснабжение: Разводка труб по дому 0
Окна Veka SoftLine 70, профиль 70 мм, цвет белый без ламинации, стеклопакет двойной 0
Дверь входная с двойным терморазрывом 0
Кровля: Металлочерепица GrandLine с полимерным покрытием Satin 0
Крытые террасы 18 м² 0
Похожие проекты
Быстровозводимый дом Ангара - 78П с готовым фасадом
Каменный
6 900 000
  • Площадь дома 78 м²
  • Площадь с учетом крыльца 82 м²
  • Количество спален 2
Урал - 90к - быстровозводимый каркасный дом
Каркасный
5 200 000
  • Площадь дома 86
  • Общая площадь 99,42 м²
  • Количество спален 3
Быстровозводимый дом Пенега - 87П с готовым фасадом
Каменный
6 900 000
  • Площадь дома 87 м²
  • Площадь с учетом крыльца 92 м²
  • Количество спален 2
Каркасные дома
4
дом 71.85 м² на участке 11 сот.
Пермь, улица Центральная

3 000 000
  • Тип дома:деревянный
  • Количество этажей:1
  • Материал стен:Сэндвич-панели

Мы используем файлы cookie, чтобы обеспечить вам наилучший доступ к нашему веб-сайту

Скопировано