г Пермь, ул Маршала Рыбалко, д 99б 7 (342) 273-77-87
г Екатеринбург, ул 8 Марта, д 149, офис 433 7 (343) 206-39-79

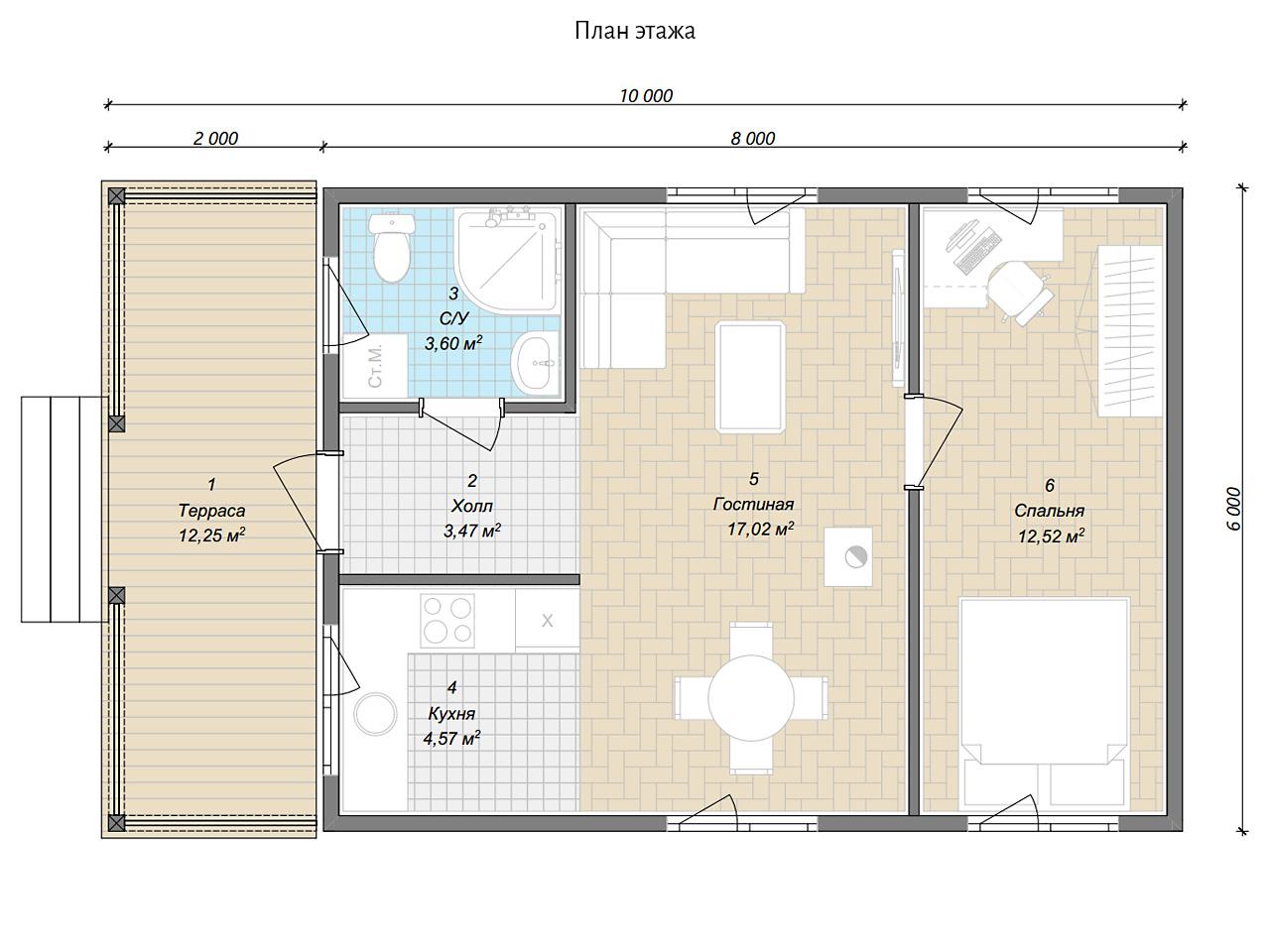
Нева - 48к - быстровозводимый каркасный дом

Нева - 48к - быстровозводимый каркасный дом
  • ТипКаркасный
  • Общая площадь с террасой60 м²
  • Количество спален1
  • Количество санузлов1
  • Изменение планировкиДоступно по запросу
  • Площадь дома с террасой 48 м²

Теплый контур (ЭКО-панели) 3 050 000
Домокомплект для самостоятельной сборки 1 050 000

Агент

Заинтересовал данный проект?

Позвонить мне
Конфигурации
Коммуникации
Название Стоимость
Геодезическое исследование участка 0
Фундамент Ж/Б забивные сваи 150 х 150 х 3000 мм 0
Монтаж заводского PreFab домокомплекта 0
Монтаж фасада: фиброцементный сайдинг с имитацией дерева. 0
Приточная и вытяжная вентиляция 0
Электрика (вводной кабель, электрический щит, разводка по точкам в гофре), УЗО 0
Водоотведение: Установка гильз под выход канализации 0
Водоснабжение: Разводка труб по дому 0
Окна Veka SoftLine 70, профиль 70 мм, цвет белый без ламинации, стеклопакет двойной 0
Дверь входная с двойным терморазрывом 0
Похожие проекты
Донец - 60к - быстровозводимый каркасный дом
Каркасный
3 450 000
  • Полезная площадь дома 58 м²
  • Общая площадь 67 м²
  • Количество спален 3
Витим - 47к - быстровозводимый каркасный дом
Каркасный
2 600 000
  • Полезная площадь дома 36,5
  • Общая площадь 47 м²
  • Количество спален 1
ДОН- 58к - быстровозводимый каркасный дом
Каркасный
3 400 000
  • Полезная площадь дома 58 м²
  • Общая площадь 62 м²
  • Количество спален 2
Каркасные дома
4
дом 71.85 м² на участке 11 сот.
Пермь, улица Центральная

3 000 000
  • Тип дома:деревянный
  • Количество этажей:1
  • Материал стен:Сэндвич-панели

Мы используем файлы cookie, чтобы обеспечить вам наилучший доступ к нашему веб-сайту

Скопировано