г Пермь, ул Маршала Рыбалко, д 99б 7 (342) 273-77-87
г Екатеринбург, ул 8 Марта, д 149, офис 433 7 (343) 206-39-79

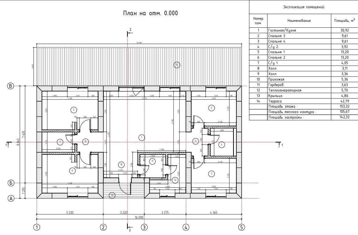
Быстровозводимый дом Ангара - 142П с готовым фасадом

Быстровозводимый дом Ангара - 142П с готовым фасадом
  • ТипКаменный
  • Площадь дома137 м²
  • Общая площадь142 м²
  • Количество спален4
  • Количество санузлов2
  • Изменение планировкиДоступно по запросу

Теплый контур 11 300 000

Агент

Заинтересовал данный проект?

Позвонить мне
Конфигурации
Коммуникации
Название Стоимость
Геодезическое исследование участка 0
Устройство свайно-ростверкового фундамента 0
Возведение наружных стен из стеновых панелей (полистиролбетон) 400мм с готовой внешней отделкой 0
Возведение внутренних несущих стен из полистиролбетонных панелей толщиной 400мм 0
Возведение перегородок из газоблока/полистиролбетона толщиной 100 мм 0
Монтаж оконных и дверных блоков-перемычек, плит перекрытий заводского изготовления 0
Устройство внутренних перегородок из полистиролбетона (газобетона) D500 толщиной 100мм 0
Приточная и вытяжная вентиляция 0
Электрика (вводной кабель, электрический щит, разводка по точкам в гофре), УЗО 0
Водоотведение: Установка гильз под выход канализации 0
Водоснабжение: Разводка труб по дому 0
Окна Veka SoftLine 70, профиль 70 мм, цвет белый без ламинации, стеклопакет двойной 0
Дверь входная с двойным терморазрывом 0
Комплект для скатной кровли (металлочерепица) 0
Похожие проекты
Быстровозводимый дом Пенега - 134П с готовым фасадом
Каменный
10 700 000
  • Площадь дома 134
  • Площадь с учетом крыльца 140 м²
  • Количество спален 3
Быстровозводимый дом Ангара - 114П с готовым фасадом
Каменный
9 500 000
  • Площадь дома 114 м²
  • Площадь с учетом крыльца 120 м²
  • Количество спален 2-3 (на выбор)
Быстровозводимый дом Пенега - 105 с готовым фасадом
Каменный
8 600 000
  • Площадь дома 105
  • Площадь с учетом крыльца 109 м²
  • Количество спален 3
Каменные дома
4
дом 71.85 м² на участке 11 сот.
Пермь, улица Центральная

3 000 000
  • Тип дома:деревянный
  • Количество этажей:1
  • Материал стен:Сэндвич-панели

Мы используем файлы cookie, чтобы обеспечить вам наилучший доступ к нашему веб-сайту

Скопировано