Элегантный одноэтажный дом — истинное воплощение изящества и семейного очага, вмещающий 55 квадратных метров волшебного комфорта и безмятежного покоя.
Этот быстровозводимый шедевр — не просто пристанище, а произведение искусства, сотканное из благородных традиций и заботливого мастерства, где каждая черта дышит непоколебимой надежностью и нежной теплотой родного дома.
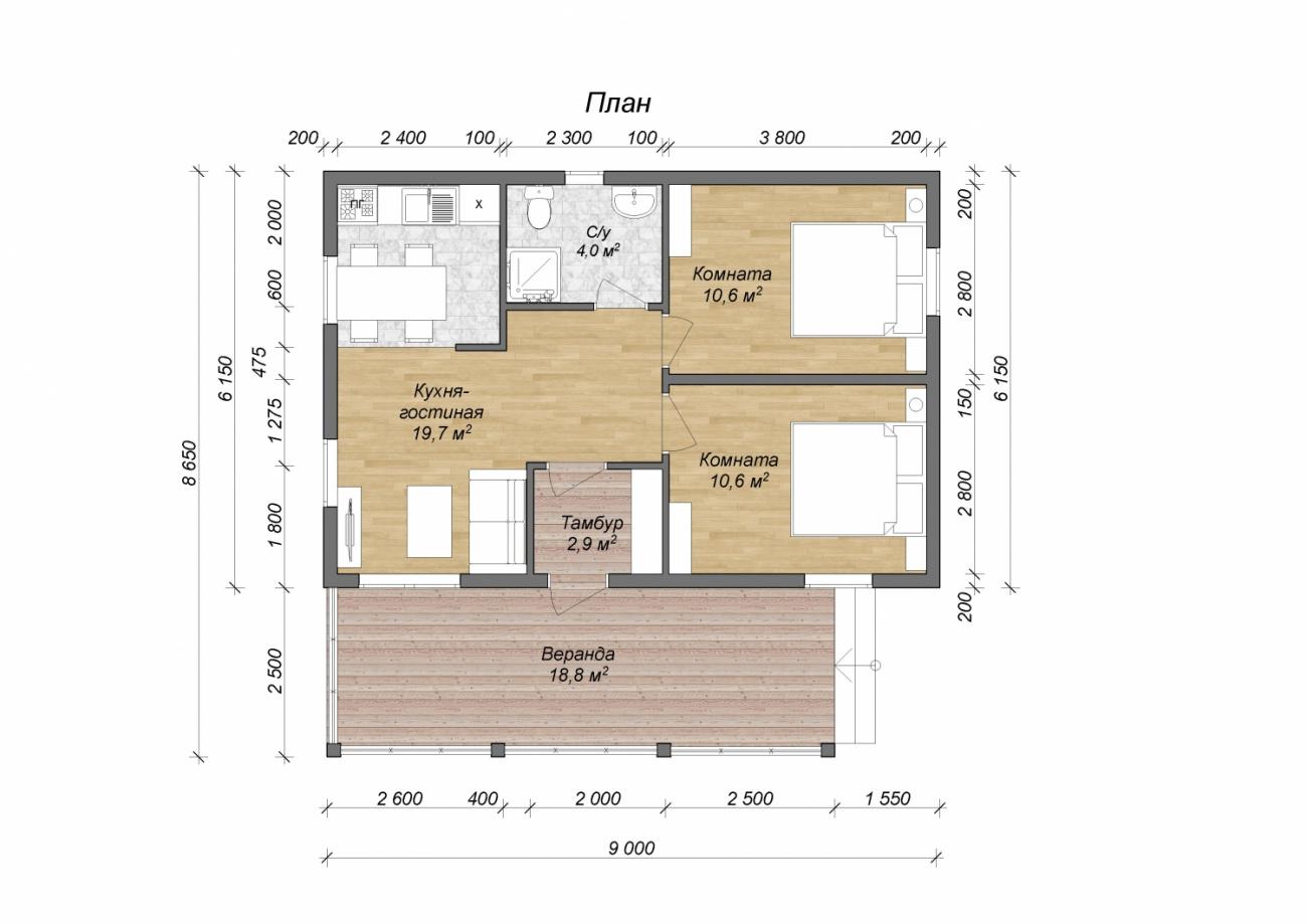
✨ Вот что ожидает вашу семью в таком удивительном убежище:
- Фасад, утонченно оформленный в классических оттенках монументальности — фиброцементный сайдинг, имитирующий благородную древесину, выбранный по вашему вкусу: вневременной и исполненный достоинства, он неизменно излучает благородную солидность.
Достаточно бережного ухода, чтобы ваш дом сиял первозданной красотой, сохраняя свою элегантную сущность под любым небом.
- Внутри — две просторные спальни, раскрывающиеся пространством глубокой любви и умиротворенного отдыха, словно ласковые объятия после долгого странствия.
- Кухня-гостиная с гармоничными пропорциями, где воздух очаровывает классической утонченностью, наполняя каждый уголок светом и атмосферой радостного семейного единения.
- Небольшая терраса (рассчитывается индивидуально) это больше чем просто площадка перед домом, это островок комфорта, вдохновения и уюта, созданный специально для вас .
🚀 Заводское производство гарантирует скорость возведения: дом готов всего за 1 месяц, а монтаж займет не более 14 дней — чтобы вы могли почувствовать тепло домашнего очага в самые короткие сроки!
🏡 Стремитесь к истинно энергоэффективному и гармоничному дому? Классический одноэтажный жемчужина — ваш идеальный выбор, воплощающий мечты о семейном рае, где каждая деталь пульсирует заботой и надежностью.
Гарантия на строительство, дополненная термоаудитом для высшего комфорта и мудрого сохранения энергии. Этот дом — не просто жилище, это мост к жизни, полной вдохновения и семейной гармонии в устоявшихся традициях.
🎁 Акция сезона: Домокомплекты по цене производителя для самостоятельной сборки — сотворите мечту своими руками! Или наслаждайтесь полным сервисом с 5% скидкой на заказ строительства дома за наличный расчет.