Элегантный одноэтажный дом в скандинавском стиле — подходит как для дачного варианта, так и для постоянного проживания небольшой семьи.
Этот быстровозводимый шедевр — не просто пристанище, а произведение искусства, сотканное из благородных традиций и заботливого мастерства, где каждая черта дышит непоколебимой надежностью и нежной теплотой родного дома.
✨ Вот что ожидает вашу семью в таком удивительном убежище:
- Фасад, утонченно оформленный в классических оттенках монументальности — фиброцементный сайдинг, имитирующий благородную древесину, выбранный по вашему вкусу: он неизменно излучает благородную солидность. Достаточно бережного ухода, чтобы ваш дом сиял первозданной красотой, сохраняя свою элегантную сущность под любым небом.
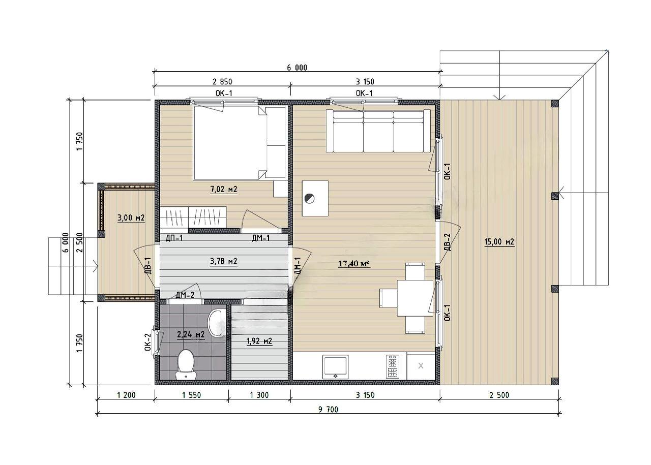
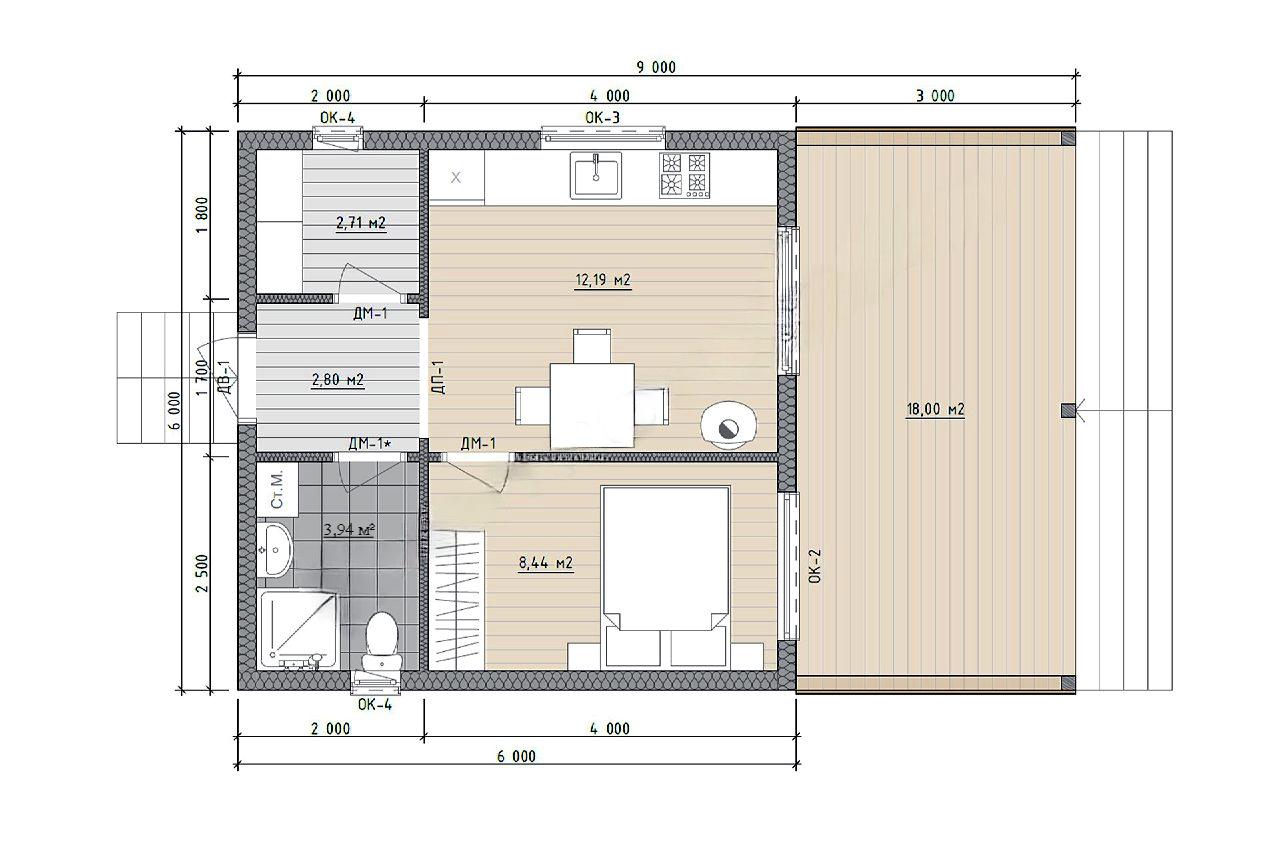
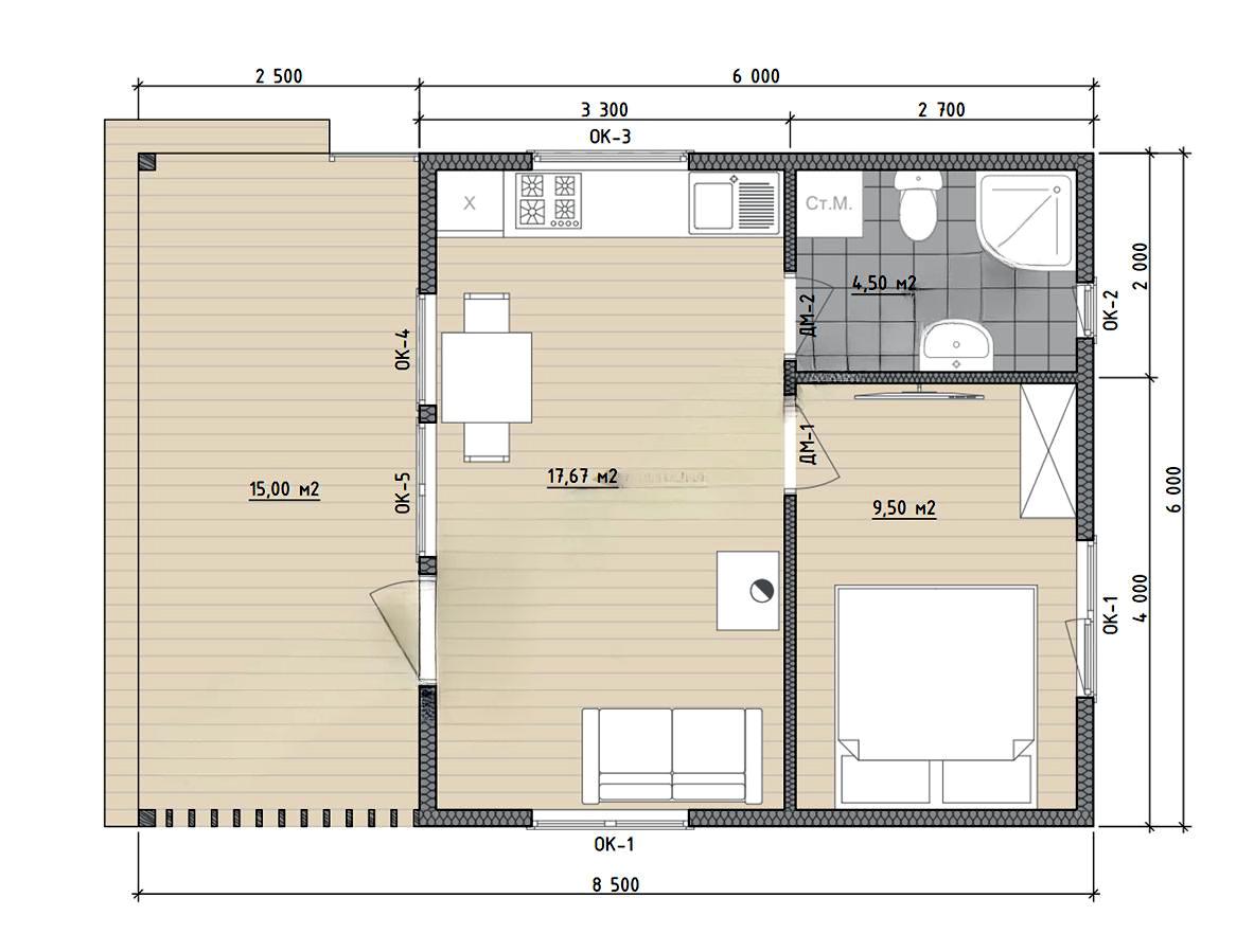
- Внутри — 1 или 2 уютные спальни (несколько вариантов планировочных решений), раскрывающиеся пространством глубокой любви и умиротворенного отдыха, словно ласковые объятия после долгого странствия.
- Небольшая кухня-гостиная с гармоничными пропорциями, где воздух очаровывает классической утонченностью, наполняя каждый уголок светом и атмосферой радостного семейного единения.
- Зона патио или крытая терраса, на ваш выбор (рассчитывается индивидуально) - это больше чем просто площадка перед домом, это островок комфорта, вдохновения и уюта, созданный специально для вас .
🚀 Заводское производство гарантирует скорость возведения: дом готов всего за 1 месяц, а монтаж займет не более 14 дней — чтобы вы могли почувствовать тепло домашнего очага в самые короткие сроки!
🏡 Стремитесь к истинно энергоэффективному и гармоничному дому? Классический одноэтажный жемчужина — ваш идеальный выбор, воплощающий мечты о семейном рае, где каждая деталь пульсирует заботой и надежностью.
Гарантия на строительство, дополненная термоаудитом для высшего комфорта и мудрого сохранения энергии. Этот дом — не просто жилище, это мост к жизни, полной вдохновения и семейной гармонии в устоявшихся традициях.
🎁 Акция сезона: Домокомплекты по цене производителя для самостоятельной сборки — сотворите мечту своими руками! Или наслаждайтесь полным сервисом с 5% скидкой на заказ строительства дома за наличный расчет.